Villa #15 (Kolašin)
Villa #15, Mountain village development near KolašinBasics
- Date added: Added 8 months ago
- Category: Kolašin, Kolašin mountains
- Status: For Sale
- Bedrooms: 2
- Bathrooms: 1
- Half baths: 1
- Area: 120 m²
- Location: Kolasin
- More filters: Garden, Terrace, New development
- Type: House or Villa
- Plot size (m²): 1205
- Price per m²: €3,582.50
Description
-
Description:
€ 429,900
Just 10 minutes from the winter sports and health resort of Kolašin lies a spacious mountain plateau with breathtaking views. A small, sustainable "mountain village" of 44,000 m² with 34 spacious plots will be created here.
Various types of houses in a uniform style will be constructed: chalets, free-standing houses, and semi-detached houses, along with a hotel. You can choose your plot location, house type (from seven options), and usage (residence, vacation home, or rental).
Villa #15
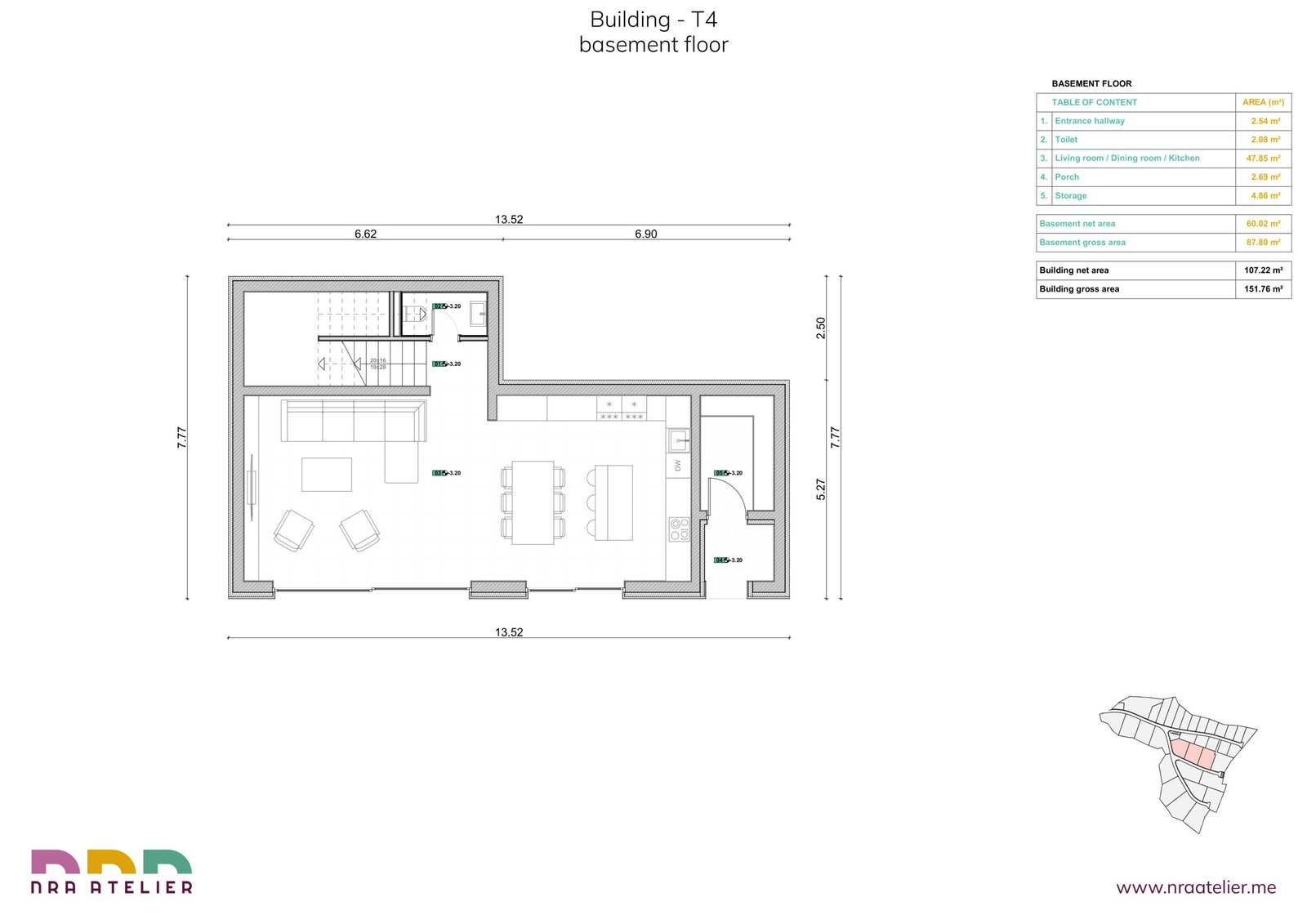
- Duplex villa with 2 bedrooms, and 1 bathroom
- Separate toilet, storage, and laundry room
- Open-plan living, dining area and kitchen, and garden
- Ready-to-let interior fittings, in particular kitchen, furniture, built-in cupboards
- Solid construction, 25 cm masonry + 10 cm insulation
- Wooden facade Latvian spruce or comparable
- Insulating glazing
- Air heat pump
- Underfloor heating
- Wood or gas burning stove
- High-quality floor coverings (tiles, LVT, partly selectable)
- Living area: 120 m²
- Converted area: 152 m²
- Size plot: 1,205 m²
- Quiet and peaceful settlement near Kolašin
- Price: €429,900
- Long-term payment plans available upon request
- Delivery: 2025
Call us or just send a message for detailed information.
Show all description
Location
- Neighborhoods: Quiet and peaceful settlement near Kolašin
Building Details
- Heating features: Underfloor heating
- Floor covering: High-quality floor coverings (tiles, LVT
- Exterior material: Wooden facade
Amenities & Features
- Features: